Baugenehmigung:
Erkundigen Sie sich unbedingt vorher bei Ihrem zuständigen Bauamt, ob ab einer bestimmten Größe eine Baubewilligung / Bauanzeige (ja nach Region) erforderlich ist. Dies ist Ländersache und wird daher in jedem Bundesland unterschiedlich gehandhabt.
Betonfundament:
Ein gutes Betonfundament ist das Wichtigste für die Lebensdauer sowie für die Sicherheit einer Außensauna. Aus diesem Grund empfehlen wir Ihnen das Fundament von einem Fachmann erstellen zu lassen. Somit ist die Montage einfach und schnell durchzuführen und auch nachher können keine Probleme durch große Gewichtsbelastung, Feuchtigkeit oder Frost auftreten.
Nach der Fertigstellung und Austrocknung der Betonplatte empfehlen wir diese mit Dachpappe oder Flämmbahnen komplett abzudichten.
Schneelast:
Erkundigen Sie sich bei Ihrer zuständigen Behörde nach den vorgeschriebenen Belastungsnormen.
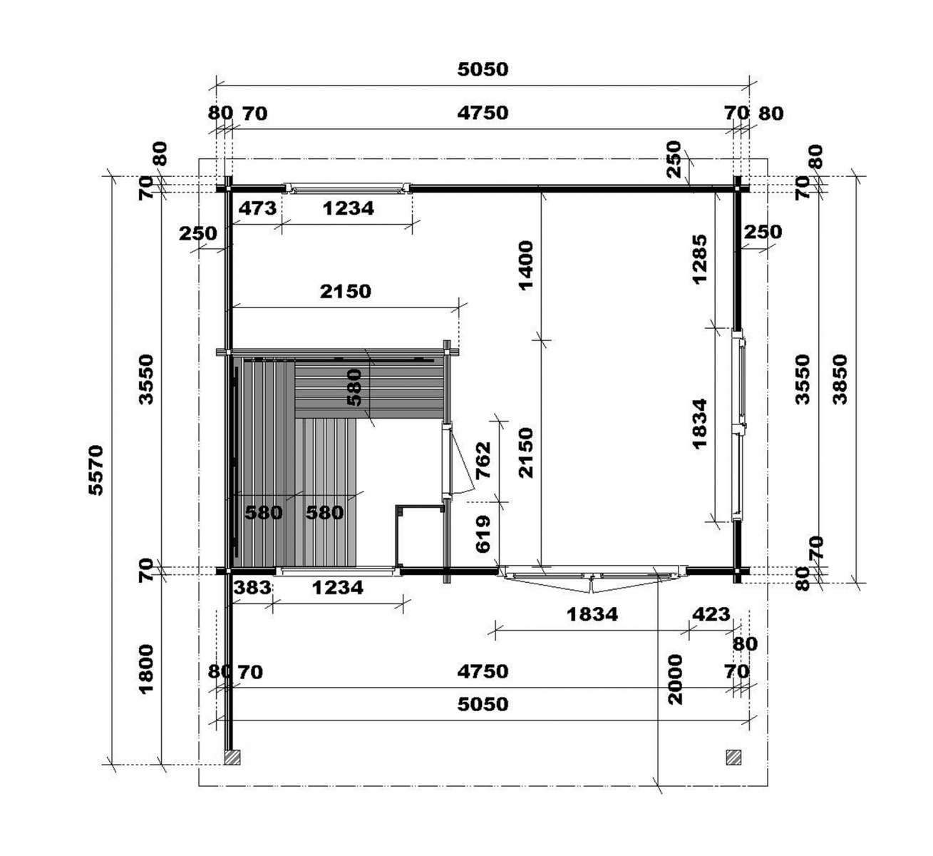
Fundamentgröße:
Das Fundament sollte ca. 10 – 15 mm kleiner sein als Ihre Gartensauna damit das Wasser an den Außenwänden und an der Außenseite des Fundaments abrinnen kann.
Hinweis:
Sollte die Fundamentplatte größer als der Grundriss der Sauna bzw. des Poolhauses sein, kann sich Regenwasser ringsum der Blockbohlensauna sammeln. Dadurch kann der Grundrahmen ständig auf nassem Boden stehen. Als Folge kann es passieren, dass das Holz das Wasser aufsaugt und zu faulen beginnt.
Unser Tipp: Die Flämmbahn oder die Abdichtung am Grundrahmen hochziehen!
Bodenisolierung:
Für die optimale Isolation empfehlen wir den Boden zwischen den Fundamenthölzern mit Styrodur (Stärke = 50 mm) zu dämmen. Der Abstand unserer Fundamenthölzer lässt sich variieren.
Elektroinstallation - Dose:
- Der Saunaofen benötigt einen 400 V Starkstromanschluss mit einer Zuleitung von 5 x 2,5 mm².
- Das Kabel sollte dann am Fundamentrand herausragen.
- Nach der Montage des Saunahauses kann der Elektriker knapp über dem Boden eine Abzweigdose setzen.
- Wir verlegen das notwendige Silikonkabel von der Position der Abzweigdose zum Steuergerät und zum Saunaofen.
- Sollten im Vorraum noch zusätzliche 230 V Stromabnehmer in der Sauna eingebaut werden, wie z.B. LED-Farblicht, Audio-System, Infrarotstrahler oder Lampen und Steckdosen, müssen die dafür benötigten Kabel berücksichtigt werden.
Anlieferung / Montage der Gartensauna:
Die Gartensauna wird per LKW (eventuell auch per Sattelzug) angeliefert. Dabei muss gewährleistet sein, dass die Zufahrt zum Entladeort möglich ist.
Die Entladung erfolgt per Stapler (1,5 – 2,5 t, je nach Modell) oder Kran und wird vom Fachhändler oder vom Endverbraucher organisiert.