Gartensauna Luna 2
Elementbauweise, Innenverkleidung aus 15 mm Profilbretter in nordischer Fichte, Außenverkleidung wahlweise mit Lärche-Fassadenprofile oder witterungsbeständigen HPL-Patten möglich.
Schlicht und elegant präsentiert sich die Design-Außensauna Luna in der natürlichen Umgebung Ihrer Gartenlandschaft.
Wählen Sie die passende Größe sowie die gewünschte Außenverkleidung und schaffen Sie sich Ihre eigene Wohlfühloase, in der Sie die Seele baumeln und den Alltagsstress für eine Weile hinter sich lassen können.
Moderne Gartensauna mit Außenverkleidung in Läche-Fassenprofilen oder witterungsbeständigen HPL-Platten
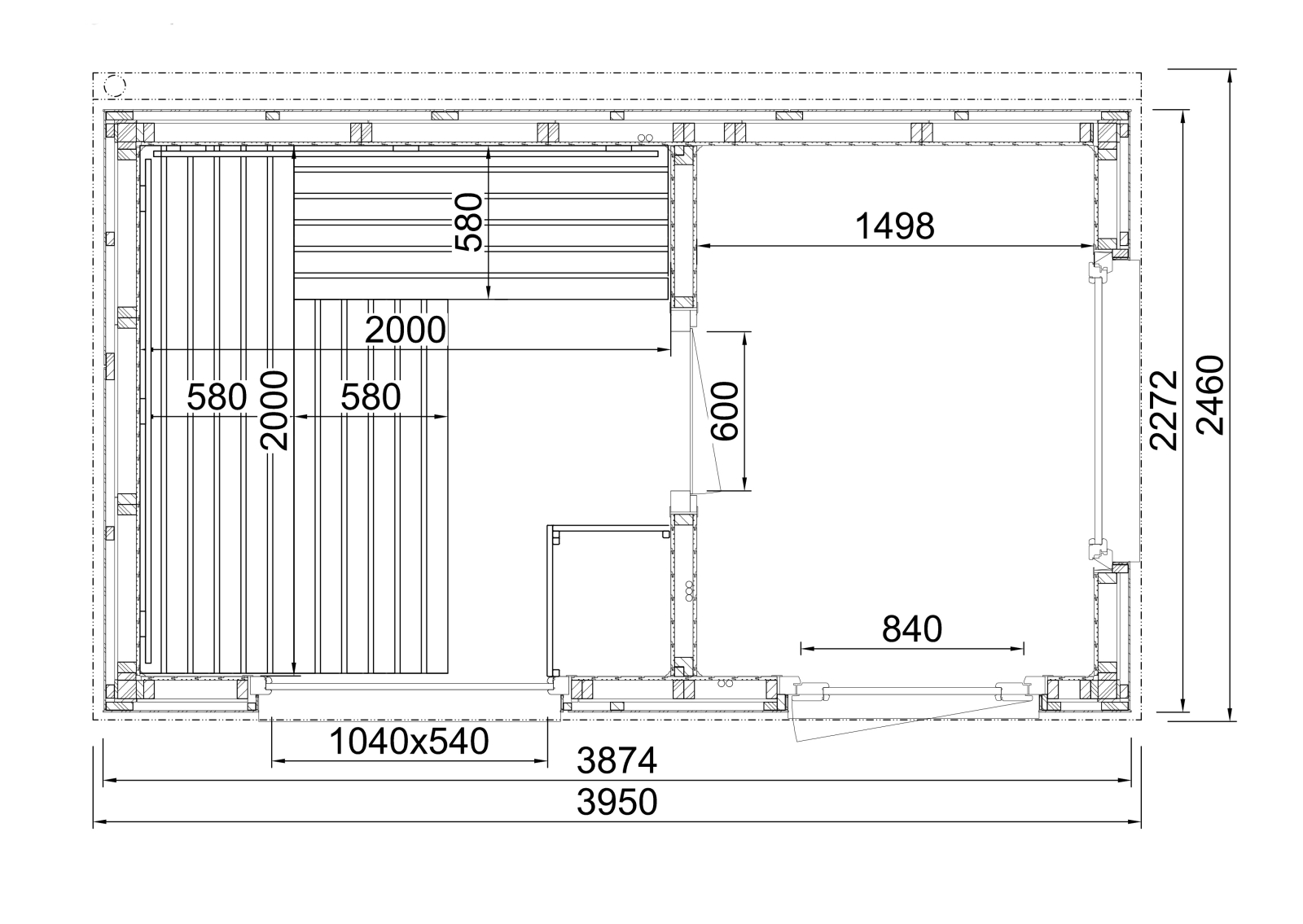
Außenmaße (B x T x H): 387 x 227 x 245 cm
Innenmaße (B x T x H): Sauna: 200 x 200 x 203 cm / Vorraum: 149 x 200 x 203 cm
Fenster im Vorraum: Isolierglas 104 x 54 mit Kippbeschlag (Anstrich RAL7035)
Fußboden aus 24 mm starken Bodendielen, Grundrahmen imprägniert, Flachdach mit EPDM-Folie, 2° Dachneigung, Regenrinne mit Ablauf nach hinten, 97 mm starke vorgefertigte Elemente plus Außenverkleidung, 70 mm Isolierung mit Dampfsperre; Saunafenster feststehend, Isolierglas, 1040 x 540 mm; Eingangstür: 610 x 1920 mm mit Isolierglas in exklusiver Ausführung; Fenster im Vorraum: 1040 x 540 mm mit Kippbeschlag; Sauna-Inneneinrichtung „Norma“ in hochwertiger Espe, Liegen 580 mm breit, Rückenlehnen, 2 Kopfstützen, Lüftungsschieber mit Insektengitter, Zwischenbankverkleidung, Ofenschutzgitter, Fußrost, Eckblendschirm „Design“ mit Saunaleuchte „Norma“; Glastür aus Sicherheitsglas 8 mm, klar, mit Schwelle.
Alle Preise zuzüglich Ofen, Steuerung und Silikonkabel-Set. Sondergrößen sind nicht möglich!
Technische Details:
- 97 mm starke Wandelemente plus Außenverkleidung
- 70 mm Isolierung mit Dampfsperre
- Grundrahmen imprägniert
- Fußboden aus 24 mm starken Bodendielen
- Eingangstüre: 61 x 192 cm, Isolierglas (Anstrich RAL7035)
- Saunafenster feststehend, Isolierglas (Anstrich RAL7035), in 3 verschiedenen Größen erhältlich
- Flachdach mit EPDM-Folie und Regenrinne, 2° Dachneigung
- Innenverkleidung aus 15 mm Profilbrettern in nordischen Fichte, vertikal verarbeitet
- Inneneinrichutn "Norma" in hochwertiger Espe
Varianten:
Variante 1 Luna 2 mit Lärchenfassadenprofile - 391056:
Saunafenster B x H: 1040 x 540 mm
Außenmasse B x T x H: 3874 x 2272 x 2450
Variante 2 Luna 2 mit HPL-Platten - 391057:
Saunafenster B x H: 1040 x 540 mm
Außenmasse B x T x H: 3874 x 2272 x 2450
Variante 3 Luna 2 mit Lärchenfassadenprofile - 391056-2A:
Saunafenster B x H: 1440 x 799 mm
Außenmasse B x T x H: 3874 x 2272 x 2450
Variante 4 Luna 2 mit HPL-Platten - 391057-2A:
Saunafenster B x H: 1440 x 799 mm
Außenmasse B x T x H: 3874 x 2272 x 2450
Variante 5 Luna 2 mit Lärchenfassadenprofile - 391056-2B:
Saunafenster B x H: 1440 x 1620 mm (2 Liegen)
Außenmasse B x T x H: 3874 x 2272 x 2450
Variante 6 Luna 2 mit HPL-Platten - 391057-2B:
Saunafenster B x H: 1440 x 1620 mm (2 Liegen)
Außenmasse B x T x H: 3874 x 2272 x 2450
Variante 7 Luna 2 mit Lärchenfassadenprofile - 391056-2C:
Saunafenster B x H: 1440 x 1620 mm (3 Liegen)
Außenmasse B x T x H: 3874 x 2272 x 2450
Variante 8 Luna 2 mit Lärchenfassadenprofile - 391057-2C:
Saunafenster B x H: 1440 x 1620 mm (3 Liegen)
Außenmasse B x T x H: 3874 x 2272 x 2450